中英文
首页 关于我们 发布内容 使用协议 问与答 付款方式 投诉与留言 通知与通告 联系方式


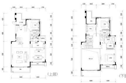
华侨城香山美墅-叠加别墅。 2016年最美新中式小区, 283平实用330平/上下2层/, 4+1房双套房设计/历时2年800W装修, 专梯入户,12平入户花园,回家就是仪式感。 6.6米中空挑高,一进门就被震撼到。 产权283平,实用足足330平, 上下两层,4+1房,空间感直接拉满。 500万中式精装,质感拉满,拎包即住。 华侨城核心地段,圈层纯粹,改善一步到位。 这样的叠墅,谁看了不心动。 仅售4***万。

联系电话和微信号:18170885079

编号:zenglfeng005

       
banquan